Intima project is a perfect Balance of luxury with affordability located in Modhu City-2. Very promising housing near Mohamamdpur,Bosial. Intima projects have some unique features & benefits that will definitely attract you. Its a avenue corner project having roads on two sides of the plot. Large community hall, Ladies gym, Prayer hall, swimming pool, Green area, Senior citizen corner, B-B-Q corner etc will be on the rooftop. There will be central gas & drinking water supply system on this projects. & many more. Wide range of connectivity with western bypass and Keranigonj elevated expressway. Ypu can choose your floor & flat according to your need. 
Project Details
Land registration in 26.10.23 (Inshallah)
Total land: 8 katha
Building: B+G+11 storied
Road: Avenue 35 ft & 25 ft
Facing: North West facing
Units: 04 units per floor.
Flat Details:
Unit-A: 1650+ Sft
04 Bed, 04 Bath, 05 balcony with Kitchen Veranda. Well ventilated drawing & dining area with roomy kitchen.
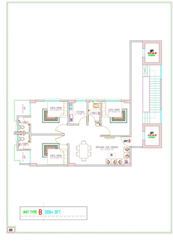
Unit- B & C: 1200+ Sft
03 Bed, 03 Bath, 03 Balcony with well balanced drawing dining area. 
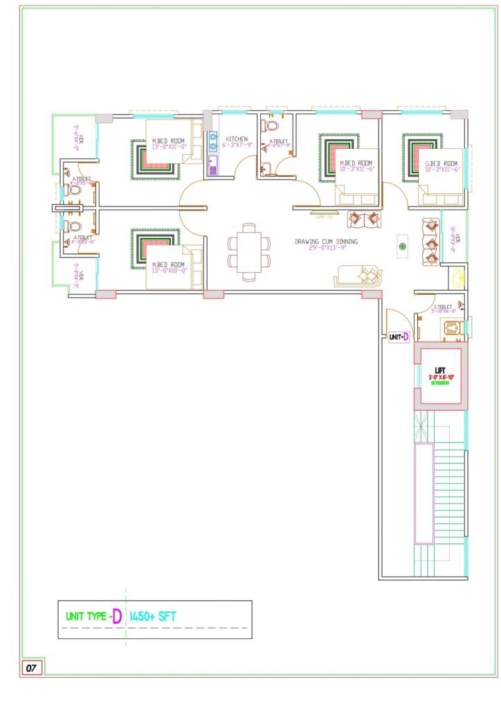
Unit-D: 1450+ Sft
04 Bed, 03 Bath, 03 Balcony with large drawing & dining space & Luxury kitchen. 
You Can Choose Your desired flat & floor, No lottery.
Floor Plan Details​​​​​​​

Unit -A : 1650+ Sft

Unit-B: 1200+ Sft

Unit-C: 1200+ Sft

Unit-D: 1450+ Sft

Full Floor Layout Plan

Back to Top